Skip to content

SOMERO Log Cabin Garage | 5.1x6.9m

Regular price £12,995.00

Tax included. Shipping calculated at checkout

Nationwide Delivery

Visit Our Showsite

Secure Payments

    Description

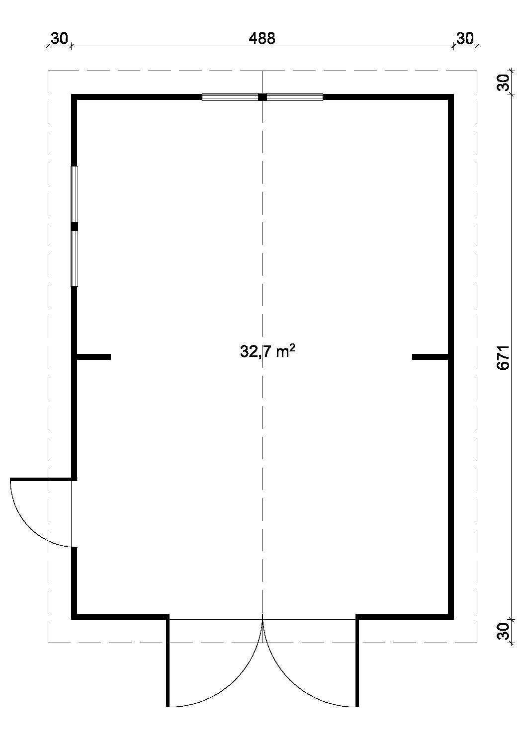
    GARAGE SOMERO 5.1 x 6.9m By Log Cabin Specialists

    GARAGE SOMERO 5.1x6.9m Log Cabin Garage
    SOMERO Log Cabin Garage | 5.1x6.9m
    Ask a Question

    Prefer To Speak To Us Directly?

    Customer Reviews

    Great service!!! From the first email to purchasing. Delivered on time. Easy to talk to and it was done in a professional way. And the one thing i liked it was a courtesy email from Katie asking how the log cabin was weeks after delivery & fitting.

    Jason / Gloucester

    Would definitely recommend professional service from start to finish and the quality of the materials is excellent thanks again 👌🏻

    Richard Catlow / Leicester

    Nationwide Delivery

    Delivery across mainland UK available

    Fitting Available

    Trusted and experienced fitting team

    Free Bespoke Service

    Fully customise your log cabin

    Coventry Show Site

    See our cabins first hand at Unit 2, Amphion Business Park, Coventry, CV6 6PA

    Drawer Title

    This website uses cookies to ensure you get the best experience on our website.

    Similar Products