Skip to content
Skip to product information
Description

By Log Cabin Specialists

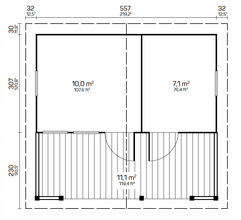
Are you looking to build a stunning and luxurious log cabin that has the capacity to house up to 10 guests? Log Cabin Specialists has just the perfect product for you! We proudly present our EINO Sauna Log Cabin – a 5.77 x 3.27 m premium-grade Nordic log cabin that is bound to make heads turn!

This extravagant 70mm log sauna offers everything you need for an epic camping experience or one-of-a-kind relaxation with family and friends. Choose from either an electric heater or wood burning option, depending on what suits you best. That's not all - you also get double-glazed windows and doors complete with 100% furnishings for added convenience.

The side wall stands at an impressive 223 cm with a ridge height of 384 cm covered by a generous 36,6m² roof, constructed using 18mm roof boards and 28 mm floor boards giving it a robust finish. If that wasn’t all, this fabulous log cabin is also made from high-quality polar spruce reinforced by extra dry 8-12% laminated timber which gives it immense stability while keeping any outside noise out of the cabin walls

So don't wait any longer, come join us at Log Cabin Specialists in making your unforgettable log cabin dreams come true!

 

  • The timber material the houses are made of is 100% Nordic high-quality spruce
  • The doors and windows are produced from extra-dry (8-12%) laminated timber
  • The windows are glazed, open in both directions and contain 100% of the furnishings
  • The doors are glazed and contain 100% of the furnishings
  • The ceiling and floor are of the 18mm thick profile board
  • The foundation beams are of autoclave impregnated timber
  • The set always includes storm bars
  • 100% of the fixation equipment (nails, screws)
  • Installation drawings and plans

EINO Sauna Log Cabin | 5.8x3.3m

Sale price £13,995.00
Regular price £14,250.00You saved£255.00 OFF

Tax included. Shipping calculated at checkout

Nationwide Delivery

Visit Our Showsite

Secure Payments

    Description

    By Log Cabin Specialists

    Are you looking to build a stunning and luxurious log cabin that has the capacity to house up to 10 guests? Log Cabin Specialists has just the perfect product for you! We proudly present our EINO Sauna Log Cabin – a 5.77 x 3.27 m premium-grade Nordic log cabin that is bound to make heads turn!

    This extravagant 70mm log sauna offers everything you need for an epic camping experience or one-of-a-kind relaxation with family and friends. Choose from either an electric heater or wood burning option, depending on what suits you best. That's not all - you also get double-glazed windows and doors complete with 100% furnishings for added convenience.

    The side wall stands at an impressive 223 cm with a ridge height of 384 cm covered by a generous 36,6m² roof, constructed using 18mm roof boards and 28 mm floor boards giving it a robust finish. If that wasn’t all, this fabulous log cabin is also made from high-quality polar spruce reinforced by extra dry 8-12% laminated timber which gives it immense stability while keeping any outside noise out of the cabin walls

    So don't wait any longer, come join us at Log Cabin Specialists in making your unforgettable log cabin dreams come true!

     

    • The timber material the houses are made of is 100% Nordic high-quality spruce
    • The doors and windows are produced from extra-dry (8-12%) laminated timber
    • The windows are glazed, open in both directions and contain 100% of the furnishings
    • The doors are glazed and contain 100% of the furnishings
    • The ceiling and floor are of the 18mm thick profile board
    • The foundation beams are of autoclave impregnated timber
    • The set always includes storm bars
    • 100% of the fixation equipment (nails, screws)
    • Installation drawings and plans
    EINO Sauna Log Cabin | 5.8x3.3m
    Ask a Question

    Prefer To Speak To Us Directly?

    Customer Reviews

    Great service!!! From the first email to purchasing. Delivered on time. Easy to talk to and it was done in a professional way. And the one thing i liked it was a courtesy email from Katie asking how the log cabin was weeks after delivery & fitting.

    Jason / Gloucester

    Would definitely recommend professional service from start to finish and the quality of the materials is excellent thanks again 👌🏻

    Richard Catlow / Leicester

    Nationwide Delivery

    Delivery across mainland UK available

    Fitting Available

    Trusted and experienced fitting team

    Free Bespoke Service

    Fully customise your log cabin

    Coventry Show Site

    See our cabins first hand at Unit 2, Amphion Business Park, Coventry, CV6 6PA

    Drawer Title

    This website uses cookies to ensure you get the best experience on our website.

    Similar Products